Dům postavený zhruba před sto lety prošel rekonstrukcí, navíc byl rozšířen směrem do zahrady tak, aby vyhovoval současným požadavkům na bydlení. Přístavbu autoři pojali v určitém kontrastu, zároveň však neměla přebíjet autenticitu původního domu. Na jižní a východní straně je prosklená, její fasádu tvoří šedý falcovaný plech, na střeše je extenzivní zeleň.


U původního objektu byly zachovány proporce, členění i použité materiály. Dům je zateplen, jeho výška se změnila pouze v návaznosti na nadkrokevní systém. Na jižní straně je rozšířen o přístavbu zimní zahrady.

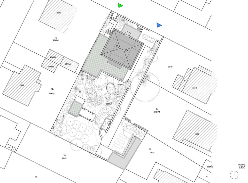
Na jižní straně je objekt rozšířen o přístavbu zimní zahrady. Vstup do domu i vjezd na pozemek jsou ze severní strany od ulice, zahrada je přístupná z obytných místností.

Zásadním impulsem projektu byla nevyhovující dispozice vstupní části – stísněný vstup nahradilo nové řešení s prostornou halou, kde je dostatek úložných prostor. Hala zároveň tvoří přirozený komunikační uzel mezi původní částí domu a přístavbou, jež může fungovat i jako samostatná část určená pro hosty.
„Návrh vznikal v úzké spolupráci s investory, jejich podněty a požadavky podobu stavby významně ovlivnily. Hmotu, proporce, členění i materiálové řešení prvorepublikové vily jsme respektovali, zachovali jsme její výrazové prvky. Doplnili jsme je pak zejména v oblasti fasádních otvorů. Výšku domu jsme upravili pouze v souvislosti s použitím nadkrokevního zateplovacího systému. Původní dům má fasádu s béžovou omítkou, také okna tu jsou ve světlé barvě. Vikýř na severní fasádě zůstal, ostatní vikýře jsme sjednotili oplechováním s přístavbou,“ uvádí autorka projektu Štěpánka Hájková.
První nadzemní podlaží zahrnuje obývací pokoj s kuchyní a jídelnou, pokoj pro hosty, pracovnu, šatnu a koupelnu. Je v přímé úrovni se zahradou na jižní straně pozemku. V podkroví je klidová zóna s ložnicí, šatnou, koupelnou a pracovnou. V suterénu se nachází technické zázemí domu, prádelna a skladovací prostory. Na místě původního vstupu je nyní garáž.


Vstupní halu prosvětluje střešní světlík. „Je to jedna z věcí, která nás velmi těší, výborně vypadá + ‚poklička‘ z vrstveného skla se povedla,“ pochvaluje si ho investor.
Stavební řešení
Konstrukčně se jedná o dvoutrakt podélného stěnového systému bez ztužujících schodišťových stěn. Stropy v suterénu jsou železobetonové trámové, v nadzemním podlaží s dřevěnými trámy průřezu 200/240 mm, osazenými v rastru 1,0 m. Valbovou střechu vynáší vaznicový krov se stojatou stolicí. Krov zůstal bez konstrukčních úprav kromě vikýře a navazující vaznice směrem do zahrady, kde byla navržena střecha s větším rozponem. Nové krokve vikýřů jsou z hranolů 120/160 mm, vaznice a vazné trámy směrem do zahrady byly zesíleny pomocí příložek.
Nejcitelnějším stavebním zásahem v přízemí bylo rozšíření okenních otvorů ve vnější nosné stěně. Zdivo bylo posouzeno metodou dílčích součinitelů. Nad otvory jsou osazena nová nadpraží z dvojice železobetonových trámů celkového průřezu 200/400 mm, betonovaných do drážky ve zdivu z jedné a následně z druhé strany. Cílem návrhu bylo vyloučit manipulaci s těžkým ocelovým nosníkem v prostoru bez možnosti použití zvedacího prostředku a využití navazující konstrukce přístavby ke zvýšení tuhosti nadpraží.
Součástí přestavby byly i úpravy dispozice, takže se zasahovalo do příček a parapetů.




Na základě požadavku investora se součástí koupelny stal i Kneippův chodník. Jedná se o běžný prvek wellness center, avšak v rámci rodinného domu představuje atypické řešení. Chodník je tvořen dvěma nádobami s teplou a studenou vodou a vrstvou kameniva. Vzhledem k hmotnosti vody, kameniva a provoznímu zatížení klade toto zařízení zvýšené nároky na nosnou konstrukci. Z tohoto důvodu musela být v místě uložení Kneippova chodníku na základě statického posouzení zesílena konstrukce.
Požadavky památkářů
Rodinný dům se nachází na území městské památkové zóny Roudnice nad Labem, proto měl projekt splnit rozsáhlé požadavky památkářů. Zachovány musely být všechny architektonické prvky fasád, včetně cihelného zdiva, u oken do ulice nebyla povolena izolační trojskla a nová okna v zateplené fasádě musela být osazena ve stejné vzdálenosti od fasády jako stávající. Památkáři také přesně předepsali podobu střešní krytiny, trvali na tzv. české šabloně v tzv. německém způsobu kladení (kdy se šablony pokládají na koso do rámu a okraje střechy a hřeben jsou rámovány lemem vodorovně kladených šablon). Nepovolili ani moderní doplňky – provětrávací tašky nebo odvětrávací hlavice. Původní krov musel být zachován včetně zhotovení jeho repliky. Mezi další požadavky patřilo například zachování předzahrádky.
Přístavba
Na základových pasech byla uložena podlahová deska tloušťky 150 mm, vyztužená kari sítí. Nosné zdivo z vápenopískových tvárnic lokálně doplňují ocelové sloupky, střešní desky jsou železobetonové monolitické. V návaznosti na stávající fasádu do zahrady je stropní deska doplněna železobetonovými trámy. Pro spojení betonových desek se stropní konstrukcí a současně k jejich tepelnému oddělení byl použit ISO nosník NIL – jedná se o český výrobek s originálním řešením přenosu smykových a tlakových sil. Tato funkce zajišťuje nosníku nejmenší tepelnou vodivost, tzn. největší tepelný odpor. Nosník je složen z izolačních ložisek, vyrobených z nerezové oceli, betonářské oceli a oceli s izolantem z extrudovaného polystyrenu. V návaznosti na stávající fasádu do zahrady je stropní deska doplněna železobetonovými trámy celkového průřezu 200/400 mm.
Akustika v poslechové místnosti
Majitelé domu si přáli vytvořit poslechovou místnost, kde si vychutnávají svá oblíbená hudební a filmová díla. Její stěny i strop jsou obloženy inovativním akustickým sklem.
Stavebně-akustické úpravy navíc zajistily, aby poslech hudby nebo projekce filmu nerušily další obyvatele domu.
TZB
Dešťová kanalizace je svedena z okapů do akumulačních nádrží o objemu 10 m3 (2× 5 m3). Přepad ze zásobníku dešťové vody je napojen do vsaku. Akumulační nádoba na dešťovou vodu se používá k zalévání zahrady, opatřena je ponorným čerpadlem.
Tepelné čerpadlo vzduch-voda slouží jako vzduchotechnická jednotka s rekuperací pro přívod a odvod vzduchu. Vzduchotechnické zařízení v sobě kombinuje funkce větrání, vytápění, přípravy teplé vody a chlazení. Jednotka je umístěna v technické místnosti v 1. PP.
-red-
Foto: Gabriela Čapková
Publikováno v časopise Materiály pro stavbu č. 1/2026
Stavební úpravy rodinného domu s přístavbou
Místo: Roudnice nad Labem
Autoři: Ing. arch. Štěpánka Hájková, Ing. arch. Petr Lédl, Ph.D.
Generální projektant: Ing. arch. Petr Lédl, Ph.D.
Konstrukční část: Ing. Jan Tvardík
Návrh zahrady: Ing. arch Karolína Štědrá
Stavební firma: SP stavební
Zastavěná plocha: 339 m2
Obestavěný prostor: 1100 m3
Plocha pozemku: 1265 m2
Skladba střešního pláště s nadkrokevním systémem
- Krytina: PREFA šablony kladené nakoso 290/290 mm
- Separační vrstva: BAUDER TOP ODS 1,5 mm
- Celoplošné dřevěné bednění: prkna tl. 24 mm
- Kontralatě 50/60 mm, provětrávaná mezera tl. 50 mm
- Pojistná hydroizolace difuzně otevřená kontaktní
- Tepelná izolace tl. 150 mm
- Parozábrana
- SDK podhled
- Krokve: pohledové, ošetřené nátěrem
Plochá zelená střecha
- Substrát s extenzivní zelení, tl. 40–95 mm
- Geotextilie s atestem proti prorůstání kořínků
- Hydroizolace fóliová, tl. 1,6 mm
- Tepelná izolace XPS se spádováním, tl. 155–100 mm
- Tepelná izolace XPS, tl. 100 mm
- Parotěsná fólie, tl. 0,6 mm
- ŽLB monolit. deska tl. 200 mm
- SDK profily + SDK podhled, tl. 125 mm
- Celkem 670 mm






Nejnovější komentáře